Sectional details of apartment units autocad software file
Description
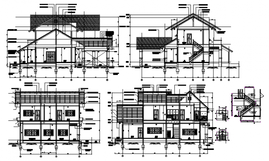
Sectional details of apartment units autocad software file that shows sectional drawings details of the apartment along with staircase details roofing structure detail at the ceiling. Door window blocks details along with dimension leveling details and other blocks details also included in drawings.
Uploaded by:
Eiz
Luna

